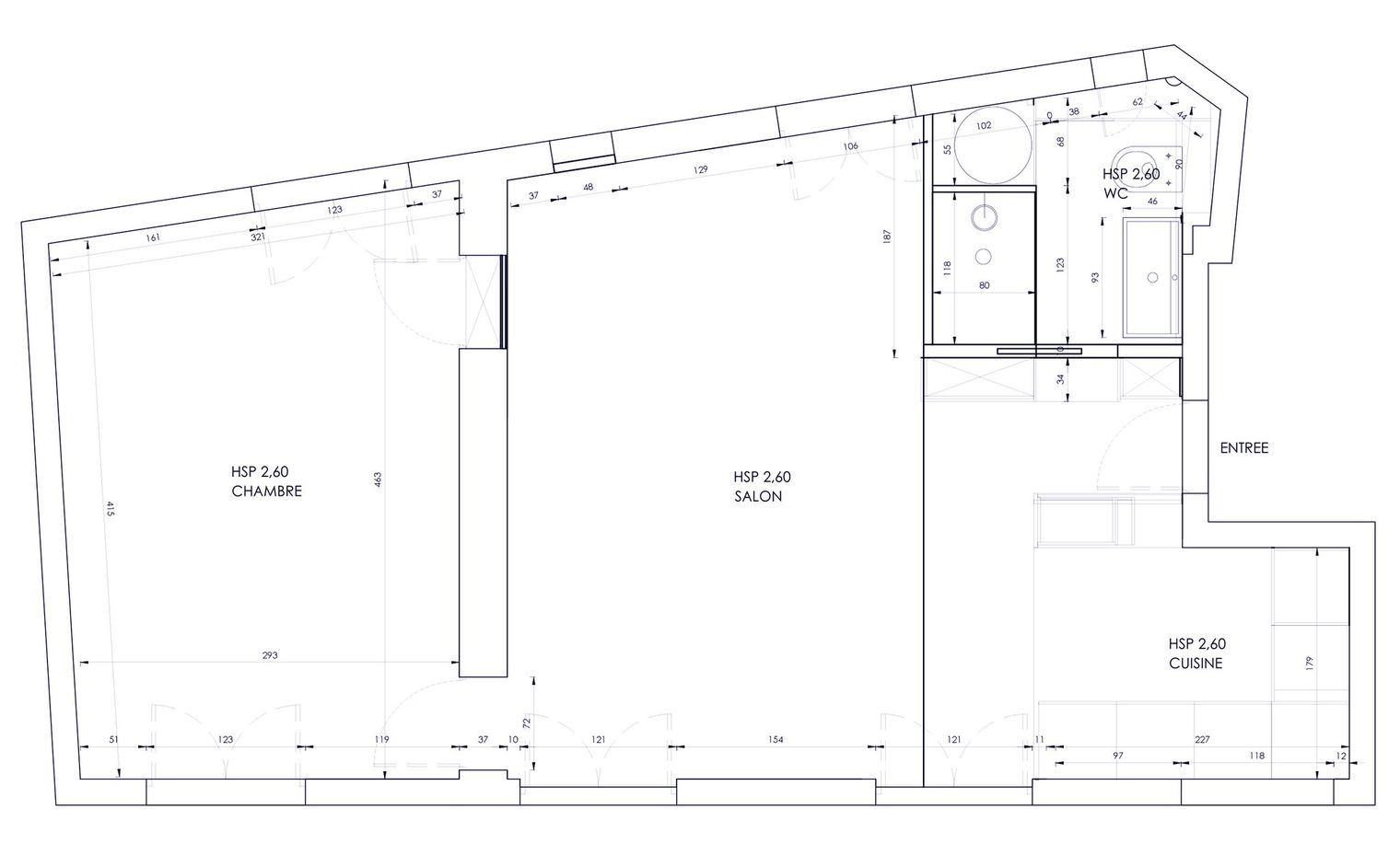
Интерьер Небольшой Квартиры от Пьера Пети
Спроектировать интерьер небольшой квартиры бывает непросто, но talented дизайнер Пьер Пети блестяще справился с этой задачей. Реконструкция малогабаритного жилища площадью всего 38 квадратных метров сделала возможным появление уютной гостиной, двух полноценный спален, обеденной зоны, кухни и небольшой ванной комнаты.

Интерьер небольшой квартиры от Пьера Пети
Основные Идеи Дизайна
Основная идея заключалась в уменьшении размеров технических помещений для освобождения пространства для жилых зон. Для этого было выбрано гармоничное сочетание белого, серого и натуральной древесины, что создает ощущение легкости и простора.
Кухня и Обеденная Зона
Несмотря на скромные размеры, кухня оснащена всем необходимым: вместительными шкафами, тумбами, бытовой техникой, множеством полок и удобной столешницей.




Обеденная Зона
Отсутствие перегородок обеспечивает плавный переход к комфортабельной обеденной зоне, которая включает стол и кресла, ведя к уютной гостиной. Гостиная обставлена мягким диваном светло-сиреневого оттенка, стеклянным журнальным столиком и телевизором, а также камином с большим зеркалом над ним.



Спальни и Их Удобства
В спальнях удалось установить двуспальные кровати и шкафы-купе. Большие окна, прикрытые легкими портьерами, влияют на освещение и создают ощущение легкости и простора в помещениях.


Ванная Комната
В ванной комнате находит место всевозможным приспособлениям: раковине, душевой кабине и унитазу. Декоративные элементы, такие как деревянные полки для полотенец и гигиенических принадлежностей, добавляют уют и функциональность.




Стоимость Преображения
Стоимость этого эффектного преображения составила 35 000 евро. Если вы готовы к радикальным переменам в своем жилище, используйте этот проект в качестве примера и действуйте!
